Бизнес
Сипаттамасы
Здравствуйте! Делаю два вида проектов, Планировка и полный дизайн проект.
1. ПЛАНИРОВКА
В проект входит:
- Обмерный план
- Схема расположения перегородок
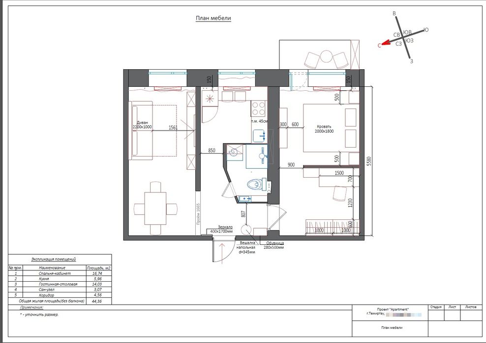
- Схема расстановки мебели
- Схема расположения освещения(или электрики, или сантехники - одно на выбор)
- концепция проекта в виде коллажа (главные дизайнерские решения, которые уже заложены в планировку)
Цена НЕ за квадрат:
25.000 тг - квартиры до 100 кв.м.
35.000 тг - квартиры 100-150 кв.м.
*работаю с вашими замерами или замеряем сами в г.Караганда и ближайших
*выезд на замер в г.Караганда и ближайшие оплачивается отдельно 5.000 тг
*Сроки 1-3 рабочих дня
1. ТЕХНИЧЕСКИЙ ДИЗАЙН ПРОЕКТ
В проект входит:
- Обмерный план
- Схема расположения перегородок
- Схема расстановки мебели
- Схема расположения сантехники
- Схема расположения электрики
- Схема расположения освещения
- Схема расположения освещения 2
- Развертки стен
- концепция проекта в виде коллажа (главные дизайнерские решения, которые уже заложены в планировку)
(!без визуализации!)
Цена за квадрат:
1000 тг/кв.м. - квартиры до 100 кв.м.
800 тг/кв.м. - квартиры 100-150 кв.м.
*работаю с вашими замерами или замеряем сами в г.Караганда и ближайших
*выезд на замер в г.Караганда и ближайшие оплачивается отдельно 5.000 тг
*Сроки 1-2 месяца (все индивидуально)
Для бесплатной консультации пиши в WA +7(************41
1. ПЛАНИРОВКА
В проект входит:
- Обмерный план
- Схема расположения перегородок
- Схема расстановки мебели
- Схема расположения освещения(или электрики, или сантехники - одно на выбор)
- концепция проекта в виде коллажа (главные дизайнерские решения, которые уже заложены в планировку)
Цена НЕ за квадрат:
25.000 тг - квартиры до 100 кв.м.
35.000 тг - квартиры 100-150 кв.м.
*работаю с вашими замерами или замеряем сами в г.Караганда и ближайших
*выезд на замер в г.Караганда и ближайшие оплачивается отдельно 5.000 тг
*Сроки 1-3 рабочих дня
1. ТЕХНИЧЕСКИЙ ДИЗАЙН ПРОЕКТ
В проект входит:
- Обмерный план
- Схема расположения перегородок
- Схема расстановки мебели
- Схема расположения сантехники
- Схема расположения электрики
- Схема расположения освещения
- Схема расположения освещения 2
- Развертки стен
- концепция проекта в виде коллажа (главные дизайнерские решения, которые уже заложены в планировку)
(!без визуализации!)
Цена за квадрат:
1000 тг/кв.м. - квартиры до 100 кв.м.
800 тг/кв.м. - квартиры 100-150 кв.м.
*работаю с вашими замерами или замеряем сами в г.Караганда и ближайших
*выезд на замер в г.Караганда и ближайшие оплачивается отдельно 5.000 тг
*Сроки 1-2 месяца (все индивидуально)
Для бесплатной консультации пиши в WA +7(************41
ID: 393684341
Сатушыға хабарласу
xxx xxx xxx
жарияланған 2026 ж. 16 наурыз
Дизайн проект / Чертежи
Тұтынушы
Мекені