Бизнес
Қабат: 6
Бөлмелер саны: 3
Салынған жылы: 2 024
Сипаттамасы
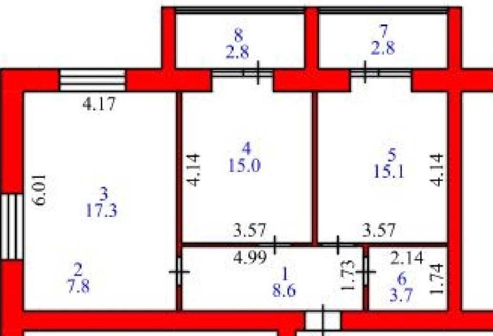
В продаже евро трешка в новом доме.
По квартире :
- стены под маяк
- электрическая разводка по всей квартире
- система отопления переделана
- углы 90 градусов
- 2 лоджии
Вид на парк и стадион Динамо
Цена указана за наличный расчет
По квартире :
- стены под маяк
- электрическая разводка по всей квартире
- система отопления переделана
- углы 90 градусов
- 2 лоджии
Вид на парк и стадион Динамо
Цена указана за наличный расчет
ID: 391422615
xxx xxx xxx
