Жеке адам
Меншік түрі: иесінен
Жалпы ауданы: 94
Қабат: 1
Орналасу: бөлек
Құрылым түрі: кірпіш
Тұрғын үй класы: эконом
Тұрғын үй түрі: Қайталама нарық
Жуынатын бөлме: бірлескен
Бөлмелер саны: 4
Салынған жылы: 1 984
Үйдің қабаты: 5
Жиһаздар: Ішінара
Сипаттамасы
Продаётся просторная 4-комнатная квартира для комфортной жизни семьи
Если вы ищете уютную, светлую и по-настоящему просторную квартиру, куда можно заехать без лишних вложений - этот вариант точно заслуживает вашего внимания.
Квартира расположена на 1 этаже кирпичного дома 1984 года постройки. Кирпич обеспечивает хорошую тепло- и шумоизоляцию, а первый этаж особенно удобен для семей с детьми и пожилых людей.
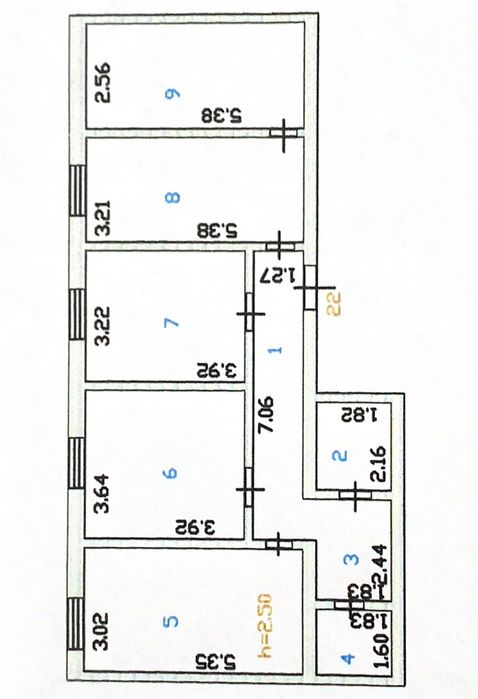
Общая площадь — 94,5 м².
Грамотная планировка: 4 изолированные комнаты, благодаря чему у каждого члена семьи будет своё личное пространство.
Преимущества квартиры:
• свежий качественный ремонт, делали для себя, не под продажу;
• высокие потолки — 3 метра, создают ощущение воздуха и простора;
• пластиковые окна с решётками -безопасно и практично;
• отдельная большая хозяйственная комната - редкое и очень удобное решение;
• совмещённый санузел;
• частично остаётся мебель;
• остаются 2 кондиционера - комфорт в любое время года;
• остаётся водонагреватель - горячая вода будет всегда;
• квартира тёплая, светлая и очень уютная;
• спокойные, хорошие соседи.
Дом и район:
• чистый подъезд;
• рядом школы, детский сад, магазины- всё необходимое для семейной жизни в шаговой доступности
Юридически чистая квартира:
• один собственник
• без обременений
• быстрый выход на сделку
Эта квартира идеально подойдёт для семьи, которая ценит пространство, удобство и хочет сразу заехать и жить, не тратя время и деньги на ремонт.
Если вы ищете уютную, светлую и по-настоящему просторную квартиру, куда можно заехать без лишних вложений - этот вариант точно заслуживает вашего внимания.
Квартира расположена на 1 этаже кирпичного дома 1984 года постройки. Кирпич обеспечивает хорошую тепло- и шумоизоляцию, а первый этаж особенно удобен для семей с детьми и пожилых людей.
Общая площадь — 94,5 м².
Грамотная планировка: 4 изолированные комнаты, благодаря чему у каждого члена семьи будет своё личное пространство.
Преимущества квартиры:
• свежий качественный ремонт, делали для себя, не под продажу;
• высокие потолки — 3 метра, создают ощущение воздуха и простора;
• пластиковые окна с решётками -безопасно и практично;
• отдельная большая хозяйственная комната - редкое и очень удобное решение;
• совмещённый санузел;
• частично остаётся мебель;
• остаются 2 кондиционера - комфорт в любое время года;
• остаётся водонагреватель - горячая вода будет всегда;
• квартира тёплая, светлая и очень уютная;
• спокойные, хорошие соседи.
Дом и район:
• чистый подъезд;
• рядом школы, детский сад, магазины- всё необходимое для семейной жизни в шаговой доступности
Юридически чистая квартира:
• один собственник
• без обременений
• быстрый выход на сделку
Эта квартира идеально подойдёт для семьи, которая ценит пространство, удобство и хочет сразу заехать и жить, не тратя время и деньги на ремонт.
ID: 392830826
xxx xxx xxx
жарияланған 2026 ж. 28 қаңтар
Продаётся квартира
30 000 000 тг.
Келісімді
Тұтынушы
Мекені
Балхаш
Қараганды облысы