Жеке адам
Меншік түрі: иесінен
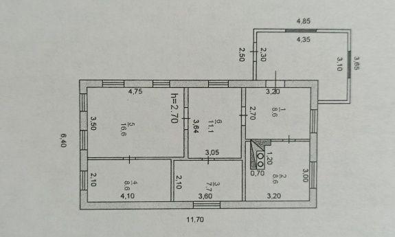
Жалпы ауданы: 64
Жөндеу: косметикалық жөндеу
Үй түрі: үй
Орналасқан жері: қалада
Жуынатын бөлме: 2 және одан да көп жуынатын бөлме
Жылыту: қатты отынмен
Электр қуаты: бар
Газ: Автономды
Учаскенің ауданы: 5
Су: орталық сумен жабдықтау
Бөлмелер саны: 4
Салынған жылы: 1 960
Үйдің қабаты: 1
Жиһаздар: Ішінара
Сипаттамасы
Продаётся жилой дом 1959 года постройки в районе МДС
Тихий, спокойный район. В шаговой доступности детские сады и школы, рядом магазины и торговые дома. Удобная транспортная развязка.
Характеристики дома:
• Общая площадь — 64 м²
• Кухня — 8,6 м²
• Материал стен -краснокамышитовый
• Пластиковые окна
• Дом жилой, подойдёт для проживания и ведения хозяйства
Коммуникации и удобства:
• Центральная вода в доме
• Печное отопление
• Септик
• Туалет и душ в доме
• Подготовлены выводы под стиральную и посудомоечную машину
• Интернет
Участок:
• 5 соток, ИЖС
• Есть огород
Постройки на территории:
• Баня
• Гараж со смотровой ямой
• Углярка и дровник (проведён свет)
• Отдельно стоящая двухкомнатная времянка
• Хозяйственные постройки
Документы в порядке, без обременений. Один собственник. Документы готовы к сделке.
Рассматриваю два варианта: — продажу дома
— обмен на трёхкомнатную улучшенную квартиру
(первый и последний этаж не рассматриваются)
Один из вариантов — либо продажа, либо обмен.
Условия обсуждаются, торг возможен при осмотре.
Тихий, спокойный район. В шаговой доступности детские сады и школы, рядом магазины и торговые дома. Удобная транспортная развязка.
Характеристики дома:
• Общая площадь — 64 м²
• Кухня — 8,6 м²
• Материал стен -краснокамышитовый
• Пластиковые окна
• Дом жилой, подойдёт для проживания и ведения хозяйства
Коммуникации и удобства:
• Центральная вода в доме
• Печное отопление
• Септик
• Туалет и душ в доме
• Подготовлены выводы под стиральную и посудомоечную машину
• Интернет
Участок:
• 5 соток, ИЖС
• Есть огород
Постройки на территории:
• Баня
• Гараж со смотровой ямой
• Углярка и дровник (проведён свет)
• Отдельно стоящая двухкомнатная времянка
• Хозяйственные постройки
Документы в порядке, без обременений. Один собственник. Документы готовы к сделке.
Рассматриваю два варианта: — продажу дома
— обмен на трёхкомнатную улучшенную квартиру
(первый и последний этаж не рассматриваются)
Один из вариантов — либо продажа, либо обмен.
Условия обсуждаются, торг возможен при осмотре.
ID: 391458327
Сатушыға хабарласу
xxx xxx xxx
жарияланған 2026 ж. 14 қаңтар
Продажа или обмен частного дома
23 000 000 тг.
Келісімді
Тұтынушы
Мекені
Павлодарское
Павлодар облысы