Перейти к основному разделу
Чат
  • Қаз
  • Рус

Уведомления

Подать объявление
Чертежи для ремонта
Чертежи для ремонта
Чертежи для ремонта
Чертежи для ремонта
Чертежи для ремонта
Чертежи для ремонта
Чертежи для ремонта
Чертежи для ремонта
РекламироватьПоднять

Бизнес

Описание

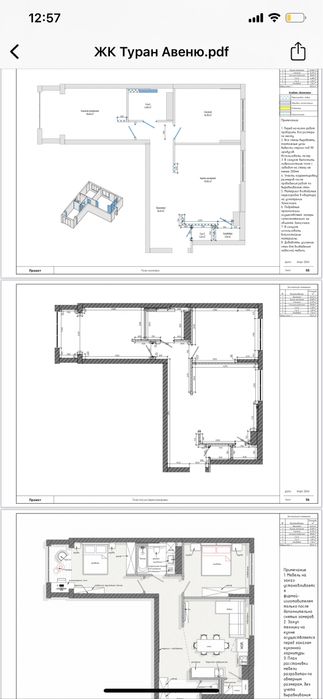
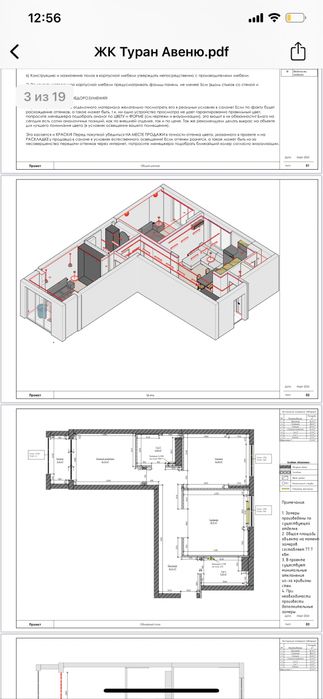
Услуги составления чертежей для ремонта квартир. Все необходимые чертежи для начала ремонта.
Что входит:
Замер
Обмерный план
План демонтажа
План монтажа
План перепланировки
План расстановки мебели
План полов
План напольных покрытий
План электрики
План сантехники
План потолка
План осветительных приборов
Развёртки ( обговариваются)
Стоимость : от 2000 тг за 1 кв м ( в зависимости от квадратуры)
ID: 364456155

Связаться с продавцом

Арай

на OLX с ноябрь 2018 г.

Онлайн 17 августа 2025 г.

xxx xxx xxx

Опубликовано 28 декабря 2025 г.

Чертежи для ремонта

Пользователь

Местоположение

Бесплатное приложение для твоего телефона