Бизнес
Описание
ЧТО ВХОДИТ В ДИЗАЙН ПРОЕКТ:
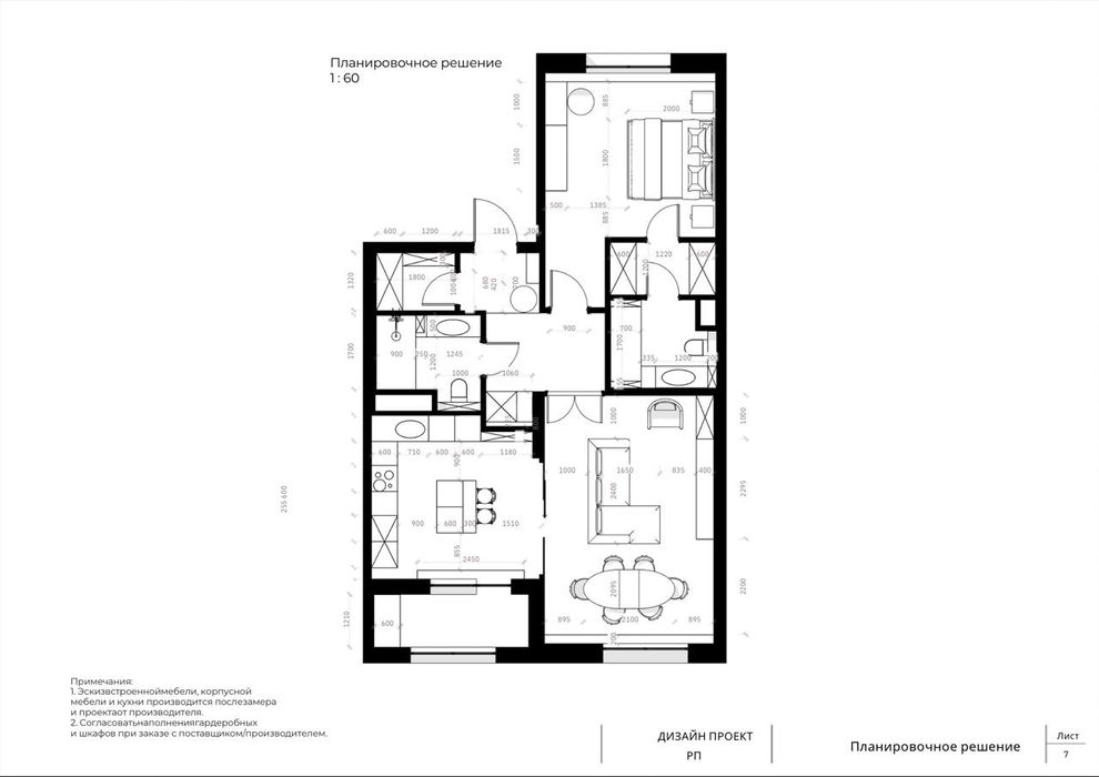
1. Рабочий проект (чертежи с планами демонтажа, монтажа, сантехники, электрики и планировки мебели с развертка стен)
2. Эскизный проект (Зд визуализация и Зд тур 360)
3. МК проект (мебельные конструкции это подробные чертежи по встроенной корпусной мебели для удобного подбора мебели и просчета коммерческих предложений от мебельных фирм)
4. Авторское сопровождение (надзор)
Контроль дизайнера за ходом выполнения строительных и ремонтных работ в соответствии с дизайн-проектом + выезды на закуп отделки с заказчиком
ДИЗАЙН-ПРОЕКТ С АВТОРСКИМ
НАДЗОРОМ
В нашей студии работают настоящие профессионалы, которые увлеченно работают над каждым проектом и имеют немалый опыт в проектировании, визуализации, подбору материалов и ведению авторского надзора 100%
Мы создаём пространства, которые вдохновляют и радуют каждый день. Наши дизайнеры учтут все ваши пожелания и превратят их в реальность.
Оставляйте заявку для подробной консультации
АЛЬБОМ ЧЕРТЕЖЕЙ
СТАДИЯ
•ОБМЕРНЫЙ ПЛАН
• ПЛАН РАССТАНОВКИ МЕБЕЛИ СО ВСЕМИ РАЗМЕРАМИ
• ПЛАН ДЕМОНТАЖА
• ПЛАН МОНТАЖА
• ПЛАН РАДИАТОРОВ
• ПЛАН ЗАПОЛНЕНИЯ ДВЕРНЫХ ПРОЕМОВ
• ПЛАН РАССТАНОВКИ САНТЕХНИЧЕСКИХ ПРИБОРОВ
• ПЛАН ПОТолочных кОНСТРУКЦИЙ
• ПЛАН ОТДЕЛКИ ПОТОЛКА
•ПЛАН ПОТОЛКА С ДЕКОРАТИВНЫМИ ЭЛЕМЕНТАМИ
• ПЛАН ОСВЕТИТЕЛЬНЫХ ПРИБОРОВ ПО ПОТОЛКУ
• ПЛАН ВЫВОДОВ И НАСТЕННЫХ БРА
• ПЛАН РАСПОЛОЖЕНИЯ РОЗЕТОК И ВЫКЛЮЧАТЕЛЕЙ
• ПЛАН ОСВЕТИТЕЛЬНЫХ ПРИБОРОВ ПО ГРУППАМ
• ПЛАН РАСПОЛОЖЕНИЯ ОСВЕТИТЕЛЬНЫХ ПРИБОРОВ И ЭЛЕКТРООБОРУДОВАНИЯ
• ПЛАН НАРОДНЫХ ПОКРЫТИЙ
• ПЛАН РАСПОЛОЖЕНИЯ ПЛИНТУСОВ
• ПЛАН СХЕМА НАПОЛЬНЫХ ПОКРЫТИЙ С РАССТАНОВКОЙ
МЕБЕЛИ
• ПЛАН ЧИСТОВОЙ ОТДЕЛКИ
• МАРКИРОВОЧНЫЙ ПЛАН
• РАЗВЕРТКИ СТЕН ПОМЕЩЕНИЯ (НА ВСЕ КОМНАТЫ)
•СПЕЦИФИКАЦИЯ МАТЕРИАЛОВ И ОБОРУДОВАНИЯ
1. Рабочий проект (чертежи с планами демонтажа, монтажа, сантехники, электрики и планировки мебели с развертка стен)
2. Эскизный проект (Зд визуализация и Зд тур 360)
3. МК проект (мебельные конструкции это подробные чертежи по встроенной корпусной мебели для удобного подбора мебели и просчета коммерческих предложений от мебельных фирм)
4. Авторское сопровождение (надзор)
Контроль дизайнера за ходом выполнения строительных и ремонтных работ в соответствии с дизайн-проектом + выезды на закуп отделки с заказчиком
ДИЗАЙН-ПРОЕКТ С АВТОРСКИМ
НАДЗОРОМ
В нашей студии работают настоящие профессионалы, которые увлеченно работают над каждым проектом и имеют немалый опыт в проектировании, визуализации, подбору материалов и ведению авторского надзора 100%
Мы создаём пространства, которые вдохновляют и радуют каждый день. Наши дизайнеры учтут все ваши пожелания и превратят их в реальность.
Оставляйте заявку для подробной консультации
АЛЬБОМ ЧЕРТЕЖЕЙ
СТАДИЯ
•ОБМЕРНЫЙ ПЛАН
• ПЛАН РАССТАНОВКИ МЕБЕЛИ СО ВСЕМИ РАЗМЕРАМИ
• ПЛАН ДЕМОНТАЖА
• ПЛАН МОНТАЖА
• ПЛАН РАДИАТОРОВ
• ПЛАН ЗАПОЛНЕНИЯ ДВЕРНЫХ ПРОЕМОВ
• ПЛАН РАССТАНОВКИ САНТЕХНИЧЕСКИХ ПРИБОРОВ
• ПЛАН ПОТолочных кОНСТРУКЦИЙ
• ПЛАН ОТДЕЛКИ ПОТОЛКА
•ПЛАН ПОТОЛКА С ДЕКОРАТИВНЫМИ ЭЛЕМЕНТАМИ
• ПЛАН ОСВЕТИТЕЛЬНЫХ ПРИБОРОВ ПО ПОТОЛКУ
• ПЛАН ВЫВОДОВ И НАСТЕННЫХ БРА
• ПЛАН РАСПОЛОЖЕНИЯ РОЗЕТОК И ВЫКЛЮЧАТЕЛЕЙ
• ПЛАН ОСВЕТИТЕЛЬНЫХ ПРИБОРОВ ПО ГРУППАМ
• ПЛАН РАСПОЛОЖЕНИЯ ОСВЕТИТЕЛЬНЫХ ПРИБОРОВ И ЭЛЕКТРООБОРУДОВАНИЯ
• ПЛАН НАРОДНЫХ ПОКРЫТИЙ
• ПЛАН РАСПОЛОЖЕНИЯ ПЛИНТУСОВ
• ПЛАН СХЕМА НАПОЛЬНЫХ ПОКРЫТИЙ С РАССТАНОВКОЙ
МЕБЕЛИ
• ПЛАН ЧИСТОВОЙ ОТДЕЛКИ
• МАРКИРОВОЧНЫЙ ПЛАН
• РАЗВЕРТКИ СТЕН ПОМЕЩЕНИЯ (НА ВСЕ КОМНАТЫ)
•СПЕЦИФИКАЦИЯ МАТЕРИАЛОВ И ОБОРУДОВАНИЯ
ID: 378836264
Связаться с продавцом
xxx xxx xxx
Опубликовано 22 декабря 2025 г.
Дизайн интерьера
Местоположение