Бизнес
Описание
Планировка - отличный вариант для тех кто хочет проект от дизайнера доступно и в короткие сроки.
В проект входит:
- Обмерный план
- Схема расположения перегородок
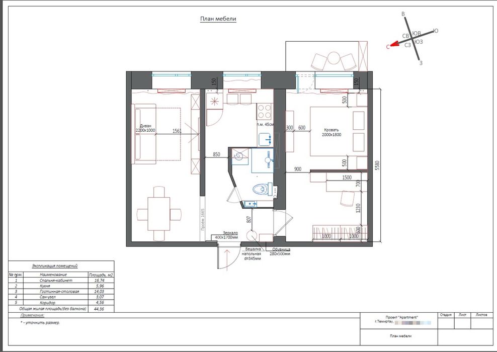
- Схема расстановки мебели
- Схема расположения освещения(или электрики, или сантехники - одно на выбор)
- концепция проекта в виде коллажа (главные дизайнерские решения, которые уже заложены в планировку)
Цена фиксированная:
15.000 тг - квартиры до 100 кв.м.
25.000 тг - квартиры 100-150 кв.м.
*работаю с вашими замерами или замеряем сами в г.Караганда и ближайших
*выезд на замер в г.Караганда и ближайшие оплачивается отдельно 5.000 тг
*Сроки 1-3 рабочих дня
Делаю полные дизайн проекты и делю их на разделы, подберем каждому свой.
Для бесплатной консультации пишите в ватсап или звоните по указанному номеру
В проект входит:
- Обмерный план
- Схема расположения перегородок
- Схема расстановки мебели
- Схема расположения освещения(или электрики, или сантехники - одно на выбор)
- концепция проекта в виде коллажа (главные дизайнерские решения, которые уже заложены в планировку)
Цена фиксированная:
15.000 тг - квартиры до 100 кв.м.
25.000 тг - квартиры 100-150 кв.м.
*работаю с вашими замерами или замеряем сами в г.Караганда и ближайших
*выезд на замер в г.Караганда и ближайшие оплачивается отдельно 5.000 тг
*Сроки 1-3 рабочих дня
Делаю полные дизайн проекты и делю их на разделы, подберем каждому свой.
Для бесплатной консультации пишите в ватсап или звоните по указанному номеру
ID: 393905488
Связаться с продавцом
xxx xxx xxx
Опубликовано 01 марта 2026 г.
Дизайнер интерьера в Караганде
Местоположение