Перейти к основному разделу
Чат
  • Қаз
  • Рус

Уведомления

Подать объявление
Коммерческие здания склад 43 м2 и гараж 31 м2 + свободная земля 100 м2
Коммерческие здания склад 43 м2 и гараж 31 м2 + свободная земля 100 м2
Коммерческие здания склад 43 м2 и гараж 31 м2 + свободная земля 100 м2
Коммерческие здания склад 43 м2 и гараж 31 м2 + свободная земля 100 м2
Коммерческие здания склад 43 м2 и гараж 31 м2 + свободная земля 100 м2
Коммерческие здания склад 43 м2 и гараж 31 м2 + свободная земля 100 м2
Коммерческие здания склад 43 м2 и гараж 31 м2 + свободная земля 100 м2
РекламироватьПоднять

Частное лицо

Тип собственности: От хозяина

Отдельная входная группа: Есть

Тип недвижимости: Магазины/бутики, Офисы, Склады

Общая площадь: 74 м²

Расположение: Отдельно стоящие здания

Этаж: 1

В помещении есть: Входная группа

Наличие парковки : Да

Описание

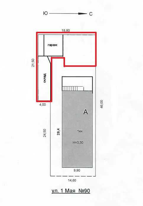
Отдельно стоящие коммерческие здания в центре - угол улиц Машхур Жусупа (бывшая 1 Мая) и Кривенко. Склад площадью 43 кв. м и гараж 31 кв. м, а также свободная земля 100 кв. м. На схеме весь участок обведен красным. Вход в здания находится в заезде за воротами. Сами здания слева, если смотреть с улицы Машхур Жусупа .

Здания подойдут для размещения офисов, торговых точек, салонов или иных коммерческих объектов. Рядом автобусная и трамвайная остановка "Дворец школьников", что делает офис или магазин более доступным для посетителей и работников. Свободную землю можно использовать под строительство. Расположение в центре города повышает статус компании и способствует привлечению клиентов.

Есть возможность провести все необходимые коммуникации. Отдельное здание предоставляет возможность самостоятельно распоряжаться пространством, а также контролировать внешний вид и рекламу.
ID: 383735484

Связаться с продавцом

Олег

на OLX с июнь 2024 г.

Онлайн вчера в 20:22

xxx xxx xxx

Опубликовано 28 ноября 2025 г.

Коммерческие здания склад 43 м2 и гараж 31 м2 + свободная земля 100 м2

29 900 000 тг.

Пользователь

Местоположение

Location

Павлодар

Павлодарская область

Бесплатное приложение для твоего телефона