Частное лицо
Описание
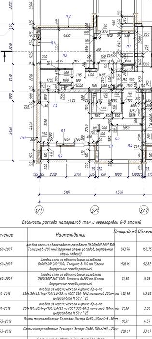
Узаконение перепланировки
Акт ввода в эксплуатаций.
Перепланировки квартиры, офисов, помещения.
- Переоборудование.
- Реконструкция.
- Изменение целевого назначения.
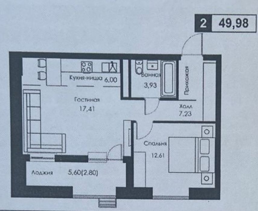
- Объединение лоджии с квартирой.
- Переоборудование (перенос кухни).
- Прочие вопросы связанные с узаконением.
Оформим любую перепланировку, переоборудование, реконструкцию квартир, жилых домов, помещений, офисов НП, а также снос строений, старого объекта, тех.обследование, экспертизу.
Акт ввода в эксплуатаций.
Перепланировки квартиры, офисов, помещения.
- Переоборудование.
- Реконструкция.
- Изменение целевого назначения.
- Объединение лоджии с квартирой.
- Переоборудование (перенос кухни).
- Прочие вопросы связанные с узаконением.
Оформим любую перепланировку, переоборудование, реконструкцию квартир, жилых домов, помещений, офисов НП, а также снос строений, старого объекта, тех.обследование, экспертизу.
ID: 363721249
Связаться с продавцом
xxx xxx xxx
Опубликовано 25 декабря 2025 г.
Перепланировка узаконение.
Местоположение