Бизнес
Описание
Внимание! Вы приобретаете профессиональную инженерную документацию для изготовления, а не готовый прицеп.
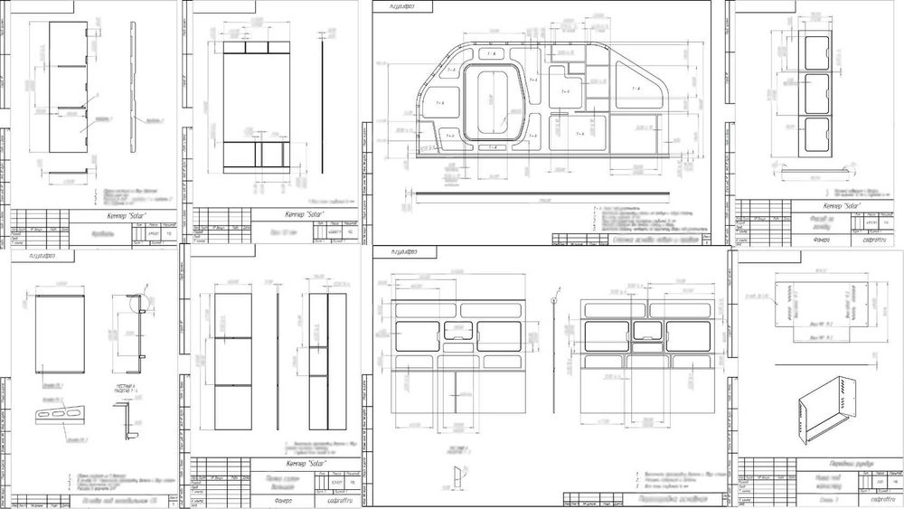
О модели "Solar V2" (Family Max): Это самая вместительная версия в семействе Solar, спроектированная для путешествий вчетвером. Мы полностью переработали компоновку салона и кухни, отталкиваясь от нового оборудования.
Главные инженерные изменения:
Революция на Кухне (Продольная компоновка): Мы развернули холодильник (30 л) продольно. Это решение позволило кардинально увеличить глубину столешницы до рекордных 645 мм!
Теперь у вас огромная рабочая зона.
Холодильник выезжает на направляющих скрытого монтажа (эстетично и надежно).
Сохранено 5 вместительных ящиков + лоток для приборов.
Вместимость 4 человека (2+2): Изменение геометрии кухни потребовало полной переработки салона, что позволило организовать 4 спальных места:
Взрослые: Полноценное двуспальное место 1960х1480 мм.
Дети: Два детских места — одно поперечное откидное (558х1450 мм) и одно продольное (556х1300 мм).
Это идеальный вариант для семьи с двумя детьми, где у каждого есть свой угол.
Монолитный корпус: Стены и пол выполняются из фанеры толщиной 18 мм, что обеспечивает высокую жесткость.
Климат: Крыша имеет утепление 38 мм (защита от перегрева летом).
Данная модель имеет следующие параметры:
- 5 вместительных ящиков над столешницей (на кухне) + 1 малый выкатной под столовые приборы;
- 1 ящик под коммуникации и бака с левой стороны;
- 1 выкатной ящик под холодильник объемом 30 л (на направляющих скрытого монтажа);
- 2 больших ящика внутри кемпера;
- 3 ящика за головой, под наклоном (удобно сидеть);
- Утепленная крыша 38 мм, одинарный пол и стены 18 мм;
- 3 вместительных модульных рундука (1 спереди и два по бокам, покупаются отдельно);
- Глубина столешницы 645 мм;
- Поперечное откидное детское спальное место 558х1450 мм;
- Продольное детское спальное место 556х1300 (1884 до стенки кухни) мм;
- Полноценное двухспальное место 1960х1480 мм;
- Можно установить окно над головой;
- Рейлинги вдоль кемпера для установки багажника или солнечной панели:
Данную модель можно изготовить из форматов листа 1525х1525, стены и пол сращиваются по специальной технологии.
Используемые толщины и форматы фанеры:
18 мм, формат 3000х1500 мм - 3 листа (1 из которых влагостойкий) ИЛИ формат 2440х1220 мм - 5 листов (если с влагостойким полом, то будет много остатка, можно сделать все из влагостойкой)
21 мм, формат 1525х1525 - 1 лист
12 мм, формат 1525х1525 - 7 листов
4 мм на обшивку - посчитать исходя из общей длины "/" на формат листа
Основные характеристики кемпера:
— Общие габариты, мм (без рамы) - 2950д х 1364в х 1500ш
Общие габариты переднего рундука, мм - 903д х 500ш (630 с местом под бак отопителя) х 478в
— Весь кемпер изготавливается из фанеры, все детали вписываются в стандартные размеры листа или при необходимости сращиваются.
— Рама (чертежи) продается отдельно.
Карты раскроя (Nesting) в комплекте В состав проекта включены профессиональные карты раскроя — оптимизированные схемы раскладки деталей на листы. Это инженерное решение позволяет вам заранее точно рассчитать бюджет на материалы, избежав лишних закупок, и существенно снизить стоимость услуг ЧПУ-резки, так как вы предоставляете производству не разрозненные векторы, а готовую схему компоновки, адаптированную под доступные форматы фанеры
Что представляет собой проект? - Разработанный короб со всем внутренним наполнением (кровать, фасады, перегородки, кухня, закладные под холодильник (при его наличии в проекте), места для расположения органов управления и тд). Т.е. приобретая данный проект и сделав раскрой всех деталей на ЧПУ фрезере Вы получаете готовый короб, который необходимо доукомплектовать для комфортного путешествия, а именно: водо/электроснабжение, фурнитура, отделка внутренняя и внешняя, матрасы и тд.
Данных комплектующих в проекте нет, но будут даны ориентиры (ссылки) на элементы, которые были использованы при разработке проекта, такие как: окна, уплотнители, чем и как обшить снаружи (несколько вариантов), холодильник и направляющие под него, замок (нет врезки в проекте), бак. Все остальное подбирается исходя из своих потребностей, бюджета и вкусовых предпочтений. При необходимости, можно комплектующие оцифровать (например выбрали раковину и не уверены что она подойдет), в этом случае необходимо предоставить все габариты, это будет переведено в 3D модель (оцифровано) и после будет примерна на модуль в электронной модели (обсуждается отдельно).
Что вы получаете после покупки. Состав проекта (КД).
1. Файлы раскроя (DXF): Векторные контуры для передачи на лазерную/плазменную/фрезерную/гидроабразивную резку ЧПУ
2. Полный пакет рабочих чертежей: Все чертежи оформлены в PDF формате (готовы к печати на А3 и А4)
2.1 Сборочные чертежи: Поузловая детализация, наглядная схема установки всех элементов с позициями установки деталей и узлов.
2.2 Спецификация на детали (и покупные элементы*)
3D модель в состав проекта не входит и не продается!
О модели "Solar V2" (Family Max): Это самая вместительная версия в семействе Solar, спроектированная для путешествий вчетвером. Мы полностью переработали компоновку салона и кухни, отталкиваясь от нового оборудования.
Главные инженерные изменения:
Революция на Кухне (Продольная компоновка): Мы развернули холодильник (30 л) продольно. Это решение позволило кардинально увеличить глубину столешницы до рекордных 645 мм!
Теперь у вас огромная рабочая зона.
Холодильник выезжает на направляющих скрытого монтажа (эстетично и надежно).
Сохранено 5 вместительных ящиков + лоток для приборов.
Вместимость 4 человека (2+2): Изменение геометрии кухни потребовало полной переработки салона, что позволило организовать 4 спальных места:
Взрослые: Полноценное двуспальное место 1960х1480 мм.
Дети: Два детских места — одно поперечное откидное (558х1450 мм) и одно продольное (556х1300 мм).
Это идеальный вариант для семьи с двумя детьми, где у каждого есть свой угол.
Монолитный корпус: Стены и пол выполняются из фанеры толщиной 18 мм, что обеспечивает высокую жесткость.
Климат: Крыша имеет утепление 38 мм (защита от перегрева летом).
Данная модель имеет следующие параметры:
- 5 вместительных ящиков над столешницей (на кухне) + 1 малый выкатной под столовые приборы;
- 1 ящик под коммуникации и бака с левой стороны;
- 1 выкатной ящик под холодильник объемом 30 л (на направляющих скрытого монтажа);
- 2 больших ящика внутри кемпера;
- 3 ящика за головой, под наклоном (удобно сидеть);
- Утепленная крыша 38 мм, одинарный пол и стены 18 мм;
- 3 вместительных модульных рундука (1 спереди и два по бокам, покупаются отдельно);
- Глубина столешницы 645 мм;
- Поперечное откидное детское спальное место 558х1450 мм;
- Продольное детское спальное место 556х1300 (1884 до стенки кухни) мм;
- Полноценное двухспальное место 1960х1480 мм;
- Можно установить окно над головой;
- Рейлинги вдоль кемпера для установки багажника или солнечной панели:
Данную модель можно изготовить из форматов листа 1525х1525, стены и пол сращиваются по специальной технологии.
Используемые толщины и форматы фанеры:
18 мм, формат 3000х1500 мм - 3 листа (1 из которых влагостойкий) ИЛИ формат 2440х1220 мм - 5 листов (если с влагостойким полом, то будет много остатка, можно сделать все из влагостойкой)
21 мм, формат 1525х1525 - 1 лист
12 мм, формат 1525х1525 - 7 листов
4 мм на обшивку - посчитать исходя из общей длины "/" на формат листа
Основные характеристики кемпера:
— Общие габариты, мм (без рамы) - 2950д х 1364в х 1500ш
Общие габариты переднего рундука, мм - 903д х 500ш (630 с местом под бак отопителя) х 478в
— Весь кемпер изготавливается из фанеры, все детали вписываются в стандартные размеры листа или при необходимости сращиваются.
— Рама (чертежи) продается отдельно.
Карты раскроя (Nesting) в комплекте В состав проекта включены профессиональные карты раскроя — оптимизированные схемы раскладки деталей на листы. Это инженерное решение позволяет вам заранее точно рассчитать бюджет на материалы, избежав лишних закупок, и существенно снизить стоимость услуг ЧПУ-резки, так как вы предоставляете производству не разрозненные векторы, а готовую схему компоновки, адаптированную под доступные форматы фанеры
Что представляет собой проект? - Разработанный короб со всем внутренним наполнением (кровать, фасады, перегородки, кухня, закладные под холодильник (при его наличии в проекте), места для расположения органов управления и тд). Т.е. приобретая данный проект и сделав раскрой всех деталей на ЧПУ фрезере Вы получаете готовый короб, который необходимо доукомплектовать для комфортного путешествия, а именно: водо/электроснабжение, фурнитура, отделка внутренняя и внешняя, матрасы и тд.
Данных комплектующих в проекте нет, но будут даны ориентиры (ссылки) на элементы, которые были использованы при разработке проекта, такие как: окна, уплотнители, чем и как обшить снаружи (несколько вариантов), холодильник и направляющие под него, замок (нет врезки в проекте), бак. Все остальное подбирается исходя из своих потребностей, бюджета и вкусовых предпочтений. При необходимости, можно комплектующие оцифровать (например выбрали раковину и не уверены что она подойдет), в этом случае необходимо предоставить все габариты, это будет переведено в 3D модель (оцифровано) и после будет примерна на модуль в электронной модели (обсуждается отдельно).
Что вы получаете после покупки. Состав проекта (КД).
1. Файлы раскроя (DXF): Векторные контуры для передачи на лазерную/плазменную/фрезерную/гидроабразивную резку ЧПУ
2. Полный пакет рабочих чертежей: Все чертежи оформлены в PDF формате (готовы к печати на А3 и А4)
2.1 Сборочные чертежи: Поузловая детализация, наглядная схема установки всех элементов с позициями установки деталей и узлов.
2.2 Спецификация на детали (и покупные элементы*)
3D модель в состав проекта не входит и не продается!
ID: 395902965
Связаться с продавцом
xxx xxx xxx
Опубликовано 23 апреля 2026 г.
Прицеп-кемпер "SOLAR" v2. Чертежи, проект
220 000 тг.
Местоположение