Бизнес
Тип собственности: От агентства \ риэлтора
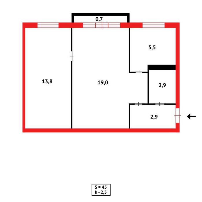
Общая площадь: 45
Этаж: 4
Ремонт: Косметический ремонт
Планировка: Cмежная
Тип строения: Панельный
Класс жилья: Эконом
Тип жилья: Вторичный рынок
Санузел: Совместный
Количество комнат: 2
Год постройки: 1 964
Этажность дома: 5
Меблирование: Да
В залоге: Нет
Описание
Продам 2-комнатную квартиру в центре. Планировка: смежная, санузел совмещённый.
Квартира с капитальным ремонтом:
• трёхпакетные стеклопакеты
• балкон застеклён
• натяжные потолки
• линолеум
• новые чугунные батареи
• полностью заменены проводка и сантехника
Квартира полностью меблирована.
Остаётся: две односпальные кровати, диван, шкаф для одежды, кухонный гарнитур, телевизор, холодильник, варочная панель, духовой шкаф, стиральная машина.
Вся мебель и техника новые.
Квартира не требует вложений — заезжай и живи.
Отопление отличное, зимой очень тепло.
Локация — центр города.
В шаговой доступности вся необходимая инфраструктура.
Есть возможность приобрести без мебели и техники — цена будет ниже.
ИПОТЕЧНОЕ СОПРОВОЖДЕНИЕ БЕЗ ПЕРВОНАЧАЛЬНОГО ВЗНОСА ПОД КЛЮЧ.
ОФИЦИАЛЬНО ПО ДОГОВОРУ.
Квартира с капитальным ремонтом:
• трёхпакетные стеклопакеты
• балкон застеклён
• натяжные потолки
• линолеум
• новые чугунные батареи
• полностью заменены проводка и сантехника
Квартира полностью меблирована.
Остаётся: две односпальные кровати, диван, шкаф для одежды, кухонный гарнитур, телевизор, холодильник, варочная панель, духовой шкаф, стиральная машина.
Вся мебель и техника новые.
Квартира не требует вложений — заезжай и живи.
Отопление отличное, зимой очень тепло.
Локация — центр города.
В шаговой доступности вся необходимая инфраструктура.
Есть возможность приобрести без мебели и техники — цена будет ниже.
ИПОТЕЧНОЕ СОПРОВОЖДЕНИЕ БЕЗ ПЕРВОНАЧАЛЬНОГО ВЗНОСА ПОД КЛЮЧ.
ОФИЦИАЛЬНО ПО ДОГОВОРУ.
ID: 394036811
Связаться с продавцом
xxx xxx xxx
Опубликовано сегодня в 13:23
Продам 2х ком. 4эт, ул.Абая. Капит.ремонт
11 000 000 тг.
Местоположение
Абай
Карагандинская область