Бизнес
Описание
Вас приветствует компания "3D CONTROL.KZ"
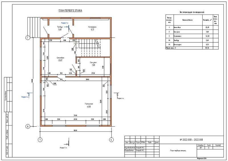
Мы разрабатываем ЭСКИЗНЫЕ ПРОЕКТЫ.
На начальном этапе строительства Вам необходимо определиться с посадкой дома на участке,планировкой комнат, высотой потолков и крыши, при учете строительных норм и аспектов эргономики - Мы поможем вам в этом!
Проект разрабатывается с применением 3D технологий, что позволяет паралельно с точными чертежами увидеть будущий дом как в компьютерной игре, прогуляться по комнатам , и на начальном этапе внести необходимые изменения для комфортного проживания.
С нашим проектом вы получите разрешение на строительство в отделе архитектуры, сможете рассчитать объем необходимых вложений, а строители заранее спланировать план работ и принять грамотные конструктивные решения.
Стоимость просчитывается индивидуально, и адекватна затраченному времени.
Звоните или пишите в WhatsApp:
Всегда готовы Вас проконсультировать и ответить на все имеющиеся вопросы.
Мы разрабатываем ЭСКИЗНЫЕ ПРОЕКТЫ.
На начальном этапе строительства Вам необходимо определиться с посадкой дома на участке,планировкой комнат, высотой потолков и крыши, при учете строительных норм и аспектов эргономики - Мы поможем вам в этом!
Проект разрабатывается с применением 3D технологий, что позволяет паралельно с точными чертежами увидеть будущий дом как в компьютерной игре, прогуляться по комнатам , и на начальном этапе внести необходимые изменения для комфортного проживания.
С нашим проектом вы получите разрешение на строительство в отделе архитектуры, сможете рассчитать объем необходимых вложений, а строители заранее спланировать план работ и принять грамотные конструктивные решения.
Стоимость просчитывается индивидуально, и адекватна затраченному времени.
Звоните или пишите в WhatsApp:
Всегда готовы Вас проконсультировать и ответить на все имеющиеся вопросы.
ID: 346049213
Связаться с продавцом
xxx xxx xxx

