Бизнес
Тип собственности: От агентства \ риэлтора
Общая площадь: 53
Этаж: 2
Ремонт: Косметический ремонт
Планировка: Раздельная
Тип строения: Кирпичный
Класс жилья: Эконом
Тип жилья: Вторичный рынок
Санузел: Раздельный
Количество комнат: 2
Год постройки: 1 979
Этажность дома: 5
Меблирование: Частично
В залоге: Нет
Описание
2-комнатная квартира в историческом центре Костаная — 52,7 м²
Продаётся уютная и полностью готовая к проживанию двухкомнатная квартира в историческом центре Костанай.
Комфортный 2 этаж 5-этажного кирпичного дома 1979 года постройки — оптимальное сочетание удобства и надёжности. Кирпичные стены обеспечивают отличную тепло- и шумоизоляцию: зимой тепло, летом комфортно, в квартире тихо.
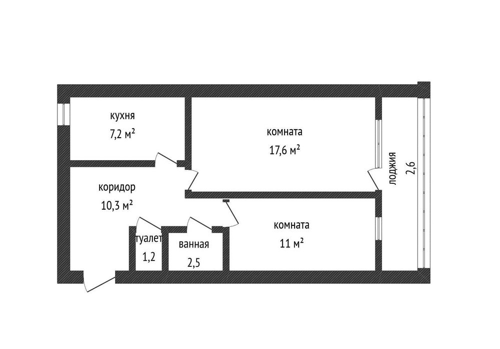
Площадь и планировка
Общая площадь — 52,7 м²
Кухня — 7,5 м²
Комнаты изолированные
Раздельный санузел
Застеклённая лоджия
Планировка удобна как для семьи, так и для сдачи в аренду.
Квартира готова к заселению
Выполнены важные обновления:
Стены выровнены под чистовую отделку
Новый линолеум
Натяжные потолки по всей квартире
Новая металлическая входная дверь
Качественные межкомнатные двери
В прихожей — кафельная плитка
Новая сантехника
Дополнительные преимущества:
- Кондиционер
- Бойлер (горячая вода круглый год)
- Камера видеонаблюдения
Вы заезжаете без лишних вложений.
Локация — главное преимущество
Исторический центр города — это всегда ликвидность и удобство.
В пешей доступности:
— центральный рынок
— школы
— детская стоматология
— гостиничный комплекс
— магазины и остановки
При этом дом расположен в тихом дворе с новой детской площадкой.
Есть надземная парковка во дворе — вопрос с автомобилем решён.
Почему это выгодно
Центр Костаная
Кирпичный дом
Комфортный второй этаж
Готовность к проживанию
Отличный вариант для семьи или инвестиций
Такие объекты в центре долго не остаются на рынке.
Звоните и записывайтесь на просмотр — квартира может быть продана в ближайшее время.
Продаётся уютная и полностью готовая к проживанию двухкомнатная квартира в историческом центре Костанай.
Комфортный 2 этаж 5-этажного кирпичного дома 1979 года постройки — оптимальное сочетание удобства и надёжности. Кирпичные стены обеспечивают отличную тепло- и шумоизоляцию: зимой тепло, летом комфортно, в квартире тихо.
Площадь и планировка
Общая площадь — 52,7 м²
Кухня — 7,5 м²
Комнаты изолированные
Раздельный санузел
Застеклённая лоджия
Планировка удобна как для семьи, так и для сдачи в аренду.
Квартира готова к заселению
Выполнены важные обновления:
Стены выровнены под чистовую отделку
Новый линолеум
Натяжные потолки по всей квартире
Новая металлическая входная дверь
Качественные межкомнатные двери
В прихожей — кафельная плитка
Новая сантехника
Дополнительные преимущества:
- Кондиционер
- Бойлер (горячая вода круглый год)
- Камера видеонаблюдения
Вы заезжаете без лишних вложений.
Локация — главное преимущество
Исторический центр города — это всегда ликвидность и удобство.
В пешей доступности:
— центральный рынок
— школы
— детская стоматология
— гостиничный комплекс
— магазины и остановки
При этом дом расположен в тихом дворе с новой детской площадкой.
Есть надземная парковка во дворе — вопрос с автомобилем решён.
Почему это выгодно
Центр Костаная
Кирпичный дом
Комфортный второй этаж
Готовность к проживанию
Отличный вариант для семьи или инвестиций
Такие объекты в центре долго не остаются на рынке.
Звоните и записывайтесь на просмотр — квартира может быть продана в ближайшее время.
ID: 393953241
Связаться с продавцом
xxx xxx xxx
Опубликовано 03 марта 2026 г.
Срочно!!! 2- ком квартира
27 000 000 тг.
Договорная
Местоположение
Костанай
Костанайская область
