Бизнес
Описание
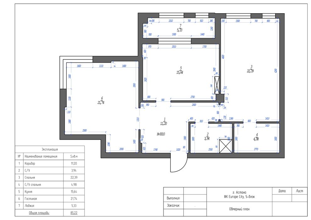
Профессиональные замеры жилых и коммерческих помещений в Астане
Жилые помещений:
• Квартиры, частные дома, новостройки.
• Выявление точной площади объекта.
• Замер - длина, ширина, высота помещений, размер оконных и дверных блоков.
• Подробный план с точными размерами.
Коммерческие помещений:
• Офисы, магазины, склады, салоны.
• Замеры площади для аренды.
• Замеры витрин, ниш и стендов для установки оборудования.
+ Обмер инженерных коммуникаций (электроснабжение; выводы водоснабжения и канализации; система отопления; система вентиляции).
Этапы замеров объекта:
1. Выезд на объект
2. Обмер помещений
3. Предоставление плана и схемы объекта в чертежах (формат PDF, Autocad)
Стоимость:
до 99 кв.м² - 400 тг/м²
от 100-199 кв.м² - 350 тг/м²
свыше 200 кв.м² - 250 тг/м²
Срок выполнения - 24 часа
WhatsApp доступен 24/7
Instagram: zamery.astana
Жилые помещений:
• Квартиры, частные дома, новостройки.
• Выявление точной площади объекта.
• Замер - длина, ширина, высота помещений, размер оконных и дверных блоков.
• Подробный план с точными размерами.
Коммерческие помещений:
• Офисы, магазины, склады, салоны.
• Замеры площади для аренды.
• Замеры витрин, ниш и стендов для установки оборудования.
+ Обмер инженерных коммуникаций (электроснабжение; выводы водоснабжения и канализации; система отопления; система вентиляции).
Этапы замеров объекта:
1. Выезд на объект
2. Обмер помещений
3. Предоставление плана и схемы объекта в чертежах (формат PDF, Autocad)
Стоимость:
до 99 кв.м² - 400 тг/м²
от 100-199 кв.м² - 350 тг/м²
свыше 200 кв.м² - 250 тг/м²
Срок выполнения - 24 часа
WhatsApp доступен 24/7
Instagram: zamery.astana
ID: 379297918
Связаться с продавцом
xxx xxx xxx

