Бизнес
Тип собственности: от хозяина
Общая площадь: 65
Ремонт: евроремонт
Тип дома: дом
Расположение: в городе
Санузел: совмещенный
Отопление: смешанное
Электричество: есть возможность подключения
Газ: есть возможность подключения
Площадь участка: 10
Вода: в доме
Количество комнат: 3, 4
Год постройки: 1 999
Этажность дома: 1
Меблирование: Да
Описание
От цеха до новоселья — за 120 дней! Производство модульных домов под ключ.
Вы мечтаете о загородном доме, но при слове «стройка» представляете бесконечные горы мусора, шумных рабочих и бюджет, который растет каждый месяц?
Мы предлагаем другой путь: современный, технологичный и предсказуемый.
Как мы строим ваш комфорт? (Листайте фото!)
1. Заводская точность: Ваш дом собирается не «в поле» под дождем, а в сухом, теплом цеху. Мы используем усиленный деревянный каркас с диагональными связями — такая конструкция выдержит любые переезды и нагрузки.
2. Эстетика снаружи : Благородный серый фасад, панорамное остекление и просторные террасы. Наши дома выглядят как арт-объекты, которые идеально вписываются в любой ландшафт — от заснеженного леса до зеленого луга.
3. Уют внутри: Вам не нужно думать об отделке. Беленый брус, высокие потолки, даже место под настоящий камин. Вы заходите в уже готовый, пахнущий деревом дом.
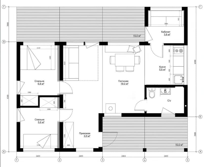
4. Продуманность до метра: В планировке «60 кв.м» мы разместили:
o Просторную кухню-гостиную (19 м^2);
o Две отдельные спальни;
o Полноценный санузел;
o Бонус: отдельный кабинет для удаленной работы.
Почему выбирают наши домокомплекты?
• Никакого строительного мусора: Привозим готовые модули. Установка на фундамент занимает 3–5 дня.
• Энергоэффективность: Мы строим «термосы». Зимой в доме тепло, а летом прохладно. Расходы на отопление вас приятно удивят.
• Фиксированная цена: Стоимость прописывается в договоре и не меняется в процессе сборки.
• Экологичность: Только натуральное дерево.
Ваша терраса уже ждет вас!
Не ждите годами — заезжайте в этом сезоне. Мы берем на себя всё: от заказа проекта до финальной отделки.
Спецпредложение: При заказе домокомплекта до конца месяца — проект фундамента и любая бытовая техника!
_
Контакты:
Звоните: 8 *********926
Адрес: г.Экибастуз ул. Ауэзова д.38
Вы мечтаете о загородном доме, но при слове «стройка» представляете бесконечные горы мусора, шумных рабочих и бюджет, который растет каждый месяц?
Мы предлагаем другой путь: современный, технологичный и предсказуемый.
Как мы строим ваш комфорт? (Листайте фото!)
1. Заводская точность: Ваш дом собирается не «в поле» под дождем, а в сухом, теплом цеху. Мы используем усиленный деревянный каркас с диагональными связями — такая конструкция выдержит любые переезды и нагрузки.
2. Эстетика снаружи : Благородный серый фасад, панорамное остекление и просторные террасы. Наши дома выглядят как арт-объекты, которые идеально вписываются в любой ландшафт — от заснеженного леса до зеленого луга.
3. Уют внутри: Вам не нужно думать об отделке. Беленый брус, высокие потолки, даже место под настоящий камин. Вы заходите в уже готовый, пахнущий деревом дом.
4. Продуманность до метра: В планировке «60 кв.м» мы разместили:
o Просторную кухню-гостиную (19 м^2);
o Две отдельные спальни;
o Полноценный санузел;
o Бонус: отдельный кабинет для удаленной работы.
Почему выбирают наши домокомплекты?
• Никакого строительного мусора: Привозим готовые модули. Установка на фундамент занимает 3–5 дня.
• Энергоэффективность: Мы строим «термосы». Зимой в доме тепло, а летом прохладно. Расходы на отопление вас приятно удивят.
• Фиксированная цена: Стоимость прописывается в договоре и не меняется в процессе сборки.
• Экологичность: Только натуральное дерево.
Ваша терраса уже ждет вас!
Не ждите годами — заезжайте в этом сезоне. Мы берем на себя всё: от заказа проекта до финальной отделки.
Спецпредложение: При заказе домокомплекта до конца месяца — проект фундамента и любая бытовая техника!
_
Контакты:
Звоните: 8 *********926
Адрес: г.Экибастуз ул. Ауэзова д.38
ID: 392882524
Связаться с продавцом
xxx xxx xxx
Опубликовано сегодня в 08:50
Модульный домакомплект
18 000 000 тг.
Местоположение
Экибастуз
Павлодарская область