Бизнес
Общая площадь: 133
Ремонт: косметический ремонт
Тип дома: дом
Санузел: совмещенный
Отопление: на газе
Электричество: есть
Газ: Автономный
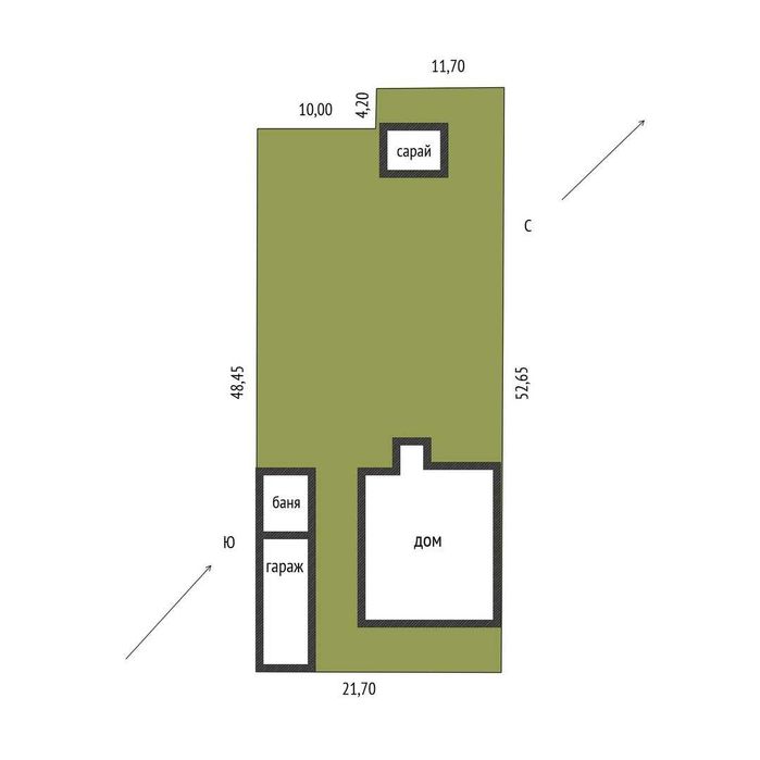
Площадь участка: 11
Вода: в доме
Количество комнат: 5
Этажность дома: 1
Описание
Просторный кирпичный дом в Заречном — заезжай и живи!
Продаётся ухоженный и полностью готовый к проживанию дом общей площадью 132,6 м² на участке 11 соток. Отличный вариант для большой семьи, которая ценит комфорт, тишину и личное пространство.
Планировка и интерьер
Дом тёплый, светлый и очень уютный, с продуманной планировкой:
5 жилых комнат
Просторный уютный зал
Большая кухня 26,3 м² с панорамными окнами — настоящее сердце дома
Тёплые полы в кухне и санузлах
Качественный ламинат по всему дому
Практичный кафель в кухне
Коммуникации
Газовое отопление
Новая двухконтурная печь (отопление + горячая вода)
Центральное водоснабжение + колодец для полива
Вместительный септик
Электричество подключено
Во дворе уложена аккуратная брусчатка
Участок и постройки
Участок полностью благоустроен:
Теплица
Плодоносящий сад: яблони, вишня, малина, смородина, клубника
2 беседки для отдыха
Мангальная зона
Гараж на 2 автомобиля с глубоким погребом
Баня-сауна с комнатой отдыха
Сарай для птицы
Уличный туалет
Расположение
Район Заречный — спокойный и обжитой
Рядом школы с русским и казахским языком обучения
Магазины, ипподром
Асфальтированные дороги
Тихая улица и хорошие соседи
Документы и условия
Без обременений
Документы готовы к сделке
Подходит под ипотеку любого банка РК
Подходит под программу «Наурыз»
Вся мебель и бытовая техника остаются
Торг возможен после осмотра
Звоните и записывайтесь на просмотр!
Этот дом — редкое сочетание качества, уюта и продуманности.
Продаётся ухоженный и полностью готовый к проживанию дом общей площадью 132,6 м² на участке 11 соток. Отличный вариант для большой семьи, которая ценит комфорт, тишину и личное пространство.
Планировка и интерьер
Дом тёплый, светлый и очень уютный, с продуманной планировкой:
5 жилых комнат
Просторный уютный зал
Большая кухня 26,3 м² с панорамными окнами — настоящее сердце дома
Тёплые полы в кухне и санузлах
Качественный ламинат по всему дому
Практичный кафель в кухне
Коммуникации
Газовое отопление
Новая двухконтурная печь (отопление + горячая вода)
Центральное водоснабжение + колодец для полива
Вместительный септик
Электричество подключено
Во дворе уложена аккуратная брусчатка
Участок и постройки
Участок полностью благоустроен:
Теплица
Плодоносящий сад: яблони, вишня, малина, смородина, клубника
2 беседки для отдыха
Мангальная зона
Гараж на 2 автомобиля с глубоким погребом
Баня-сауна с комнатой отдыха
Сарай для птицы
Уличный туалет
Расположение
Район Заречный — спокойный и обжитой
Рядом школы с русским и казахским языком обучения
Магазины, ипподром
Асфальтированные дороги
Тихая улица и хорошие соседи
Документы и условия
Без обременений
Документы готовы к сделке
Подходит под ипотеку любого банка РК
Подходит под программу «Наурыз»
Вся мебель и бытовая техника остаются
Торг возможен после осмотра
Звоните и записывайтесь на просмотр!
Этот дом — редкое сочетание качества, уюта и продуманности.
ID: 392318453
Связаться с продавцом
xxx xxx xxx
Опубликовано 12 января 2026 г.
Продам 5 дом в Заречном
40 900 000 тг.
Местоположение
Костанай
Костанайская область