Частное лицо
Тип собственности: от хозяина
Общая площадь: 180
Ремонт: косметический ремонт
Тип дома: коттедж
Расположение: в пригороде
Санузел: 2 санузла и более
Отопление: на твердом топливе
Электричество: есть
Газ: нет
Площадь участка: 9
Вода: в доме
Количество комнат: 4
Год постройки: 2 023
Этажность дома: 2
Меблирование: Частично
Описание
Дом 155 м² + участок 9 соток с потенциалом ДОХОДА (2 въезда, под бизнес)
Цена: 40 000 000 тг (возможен торг)
Продаётся тёплый и просторный дом в с. Павлодарское — идеальный вариант для семьи и одновременно отличная инвестиция.
УНИКАЛЬНОЕ ПРЕИМУЩЕСТВО:
Участок с двумя выездами на разные стороны — редкость на рынке.
Вы можете:
-построить второй дом и продать / сдавать
-открыть бизнес прямо на участке
- разделить участок на два
-использовать уже готовый фундамент 7×12 под коммерцию
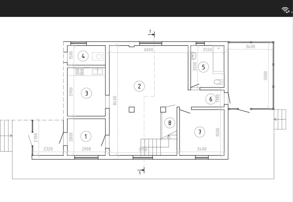
О доме:
- Площадь: 148 м²
- Материал: газоблок (тёплый дом)
- Мансардный этаж
- Удобная и продуманная планировка
- Можно заехать и жить без срочных вложений
Планировка:
- Просторная гостиная с хорошим светом
-2 приходит
-хоз помещение под лестницей
- Кухня
- 3 жилые комнаты
- 2 гардеробные
- 2 санузла
Коммуникации:
- Центральное водоснабжение
- Отопление печное (отдельная котельная с входом через гараж — безопасно и удобно)
Дополнительно:
- Гараж
-Баня отдельная 30м2
- Хозпостройки
- Удобный подъезд с двух сторон
-недостроеное коммерческое помещение 100м2 в процессе строительства достроим будет дороже
Локация:
- Остановка в 20 метрах 44 маршрут каждые 20 мин
- Тихий, обжитый район
- Хорошие подъездные пути
Почему это выгодно:
Вы покупаете не просто дом — а объект с потенциалом дополнительного дохода и роста стоимости.
Звоните сейчас — такие участки с возможностями встречаются редко
Цена: 40 000 000 тг (возможен торг)
Продаётся тёплый и просторный дом в с. Павлодарское — идеальный вариант для семьи и одновременно отличная инвестиция.
УНИКАЛЬНОЕ ПРЕИМУЩЕСТВО:
Участок с двумя выездами на разные стороны — редкость на рынке.
Вы можете:
-построить второй дом и продать / сдавать
-открыть бизнес прямо на участке
- разделить участок на два
-использовать уже готовый фундамент 7×12 под коммерцию
О доме:
- Площадь: 148 м²
- Материал: газоблок (тёплый дом)
- Мансардный этаж
- Удобная и продуманная планировка
- Можно заехать и жить без срочных вложений
Планировка:
- Просторная гостиная с хорошим светом
-2 приходит
-хоз помещение под лестницей
- Кухня
- 3 жилые комнаты
- 2 гардеробные
- 2 санузла
Коммуникации:
- Центральное водоснабжение
- Отопление печное (отдельная котельная с входом через гараж — безопасно и удобно)
Дополнительно:
- Гараж
-Баня отдельная 30м2
- Хозпостройки
- Удобный подъезд с двух сторон
-недостроеное коммерческое помещение 100м2 в процессе строительства достроим будет дороже
Локация:
- Остановка в 20 метрах 44 маршрут каждые 20 мин
- Тихий, обжитый район
- Хорошие подъездные пути
Почему это выгодно:
Вы покупаете не просто дом — а объект с потенциалом дополнительного дохода и роста стоимости.
Звоните сейчас — такие участки с возможностями встречаются редко
ID: 395622347
Связаться с продавцом
xxx xxx xxx
Опубликовано 16 апреля 2026 г.
продам частный дом
40 000 000 тг.
Местоположение
Мичурино
Павлодарская область