Частное лицо
Тип собственности: от хозяина
Общая площадь: 150
Тип дома: дом
Расположение: в городе
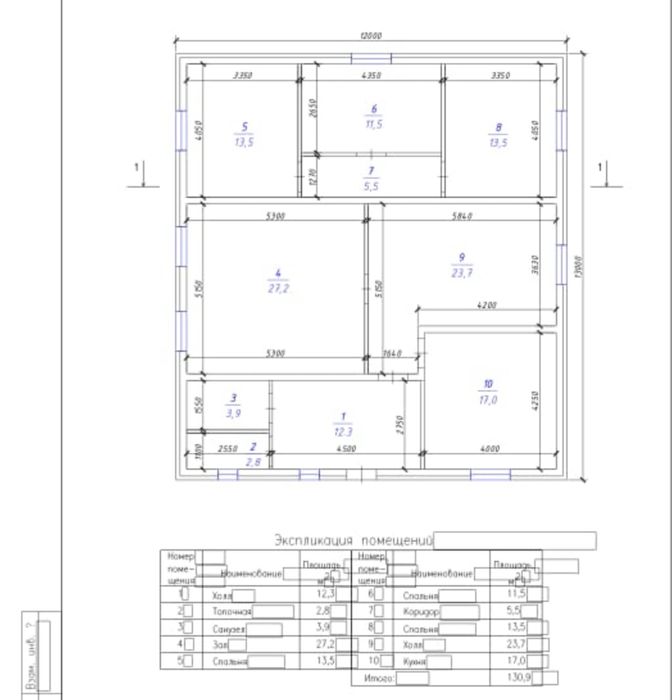
Санузел: раздельный
Отопление: на газе
Электричество: есть
Газ: Магистральный
Площадь участка: 4
Вода: центральное водоснабжение
Количество комнат: 4
Год постройки: 2 024
Этажность дома: 1
Меблирование: Нет
Описание
Продам Новый частный дом в микрорайоне Көктем, по ул. Қозы көрпеш. 4 соток.
Год постройки 2025 год.
Газоблок обложен кирпичем.
Площадь дома 150 кв.м. 4 комн. + холл.
Планировка раздельная, Санузел разд.
Высота потолков 3 метр.
Двор огорожен. Маршрут 2, 7, 9.
Рядом 10, 38, 47 школа.
Ипотека проходит.
Предчистовая отделка. Реальному покупателя торг.есть. Подробности по тел.
Год постройки 2025 год.
Газоблок обложен кирпичем.
Площадь дома 150 кв.м. 4 комн. + холл.
Планировка раздельная, Санузел разд.
Высота потолков 3 метр.
Двор огорожен. Маршрут 2, 7, 9.
Рядом 10, 38, 47 школа.
Ипотека проходит.
Предчистовая отделка. Реальному покупателя торг.есть. Подробности по тел.
ID: 390414928
Связаться с продавцом
xxx xxx xxx
Опубликовано 28 января 2026 г.
Продам Новый частный дом
40 000 000 тг.
Местоположение
Уральск, Зачаганск
Западно-Казахстанская область
